Joel Sanders Architect

Victoria Munroe Gallery

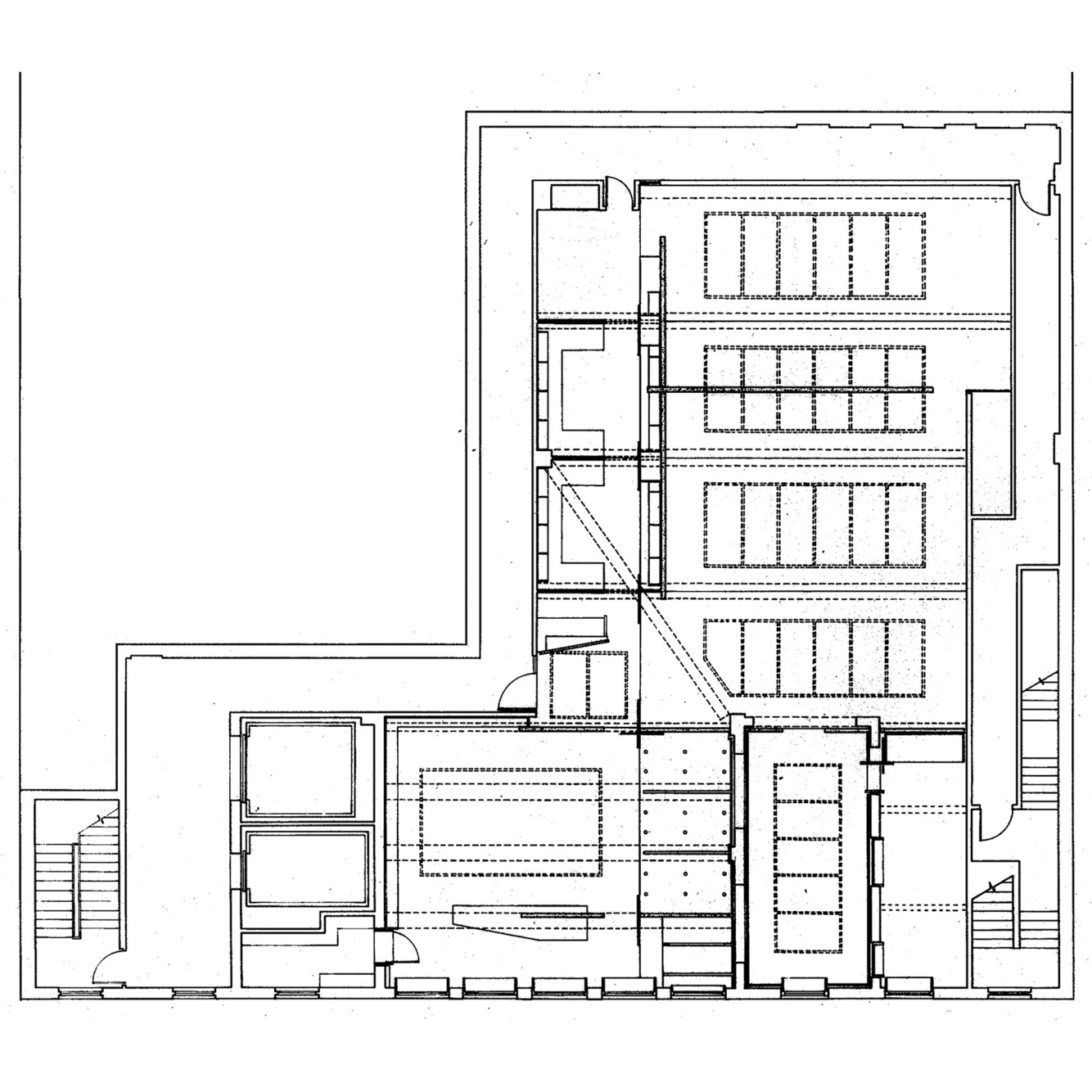
The enclosed white cube of the art gallery represses its context, its history, and its own status as a place of business. Our design for the Victoria Munroe Gallery, a 3,200 square foot space in a converted bakery building in the heart of SoHo, attempts to address and redress these strategies of concealment. The project attempts to expose the original context of the building, a site which sheltered another form of production. We left intact the existing cracking and peeling concrete walls, the ceiling and beams as well as the graffiti-covered brick shell of the original fire stair.

All the elements of our intervention to transform the space into a gallery are treated as independent planes that flow free of and are juxtaposed against, the preexisting forms. New white walls float in front of the brick fire stair, transforming this found space into an intimate gallery for the display of small objects. The context of the existing gallery is further revealed by inverting the disposition of typically concealed spaces, such as the “back room” where business is conducted, and making them immediately visible upon entry into the gallery. Joining the main gallery spaces, a longitudinal axis leads the viewer to a window which provides a view of the city street below, connecting the rarefied world of the art object to that of everyday life.

Location New York, NY
Size 3,200 SF
Year 1992
02-Victoria-Munroe-Gallery